logo

stiamo cercando il tuo immobile ideale su oltre 44000 offerte

caricamento
+39 02 89954059
Appartamento in vendita - Rif. VT17473

Provincia di ME .

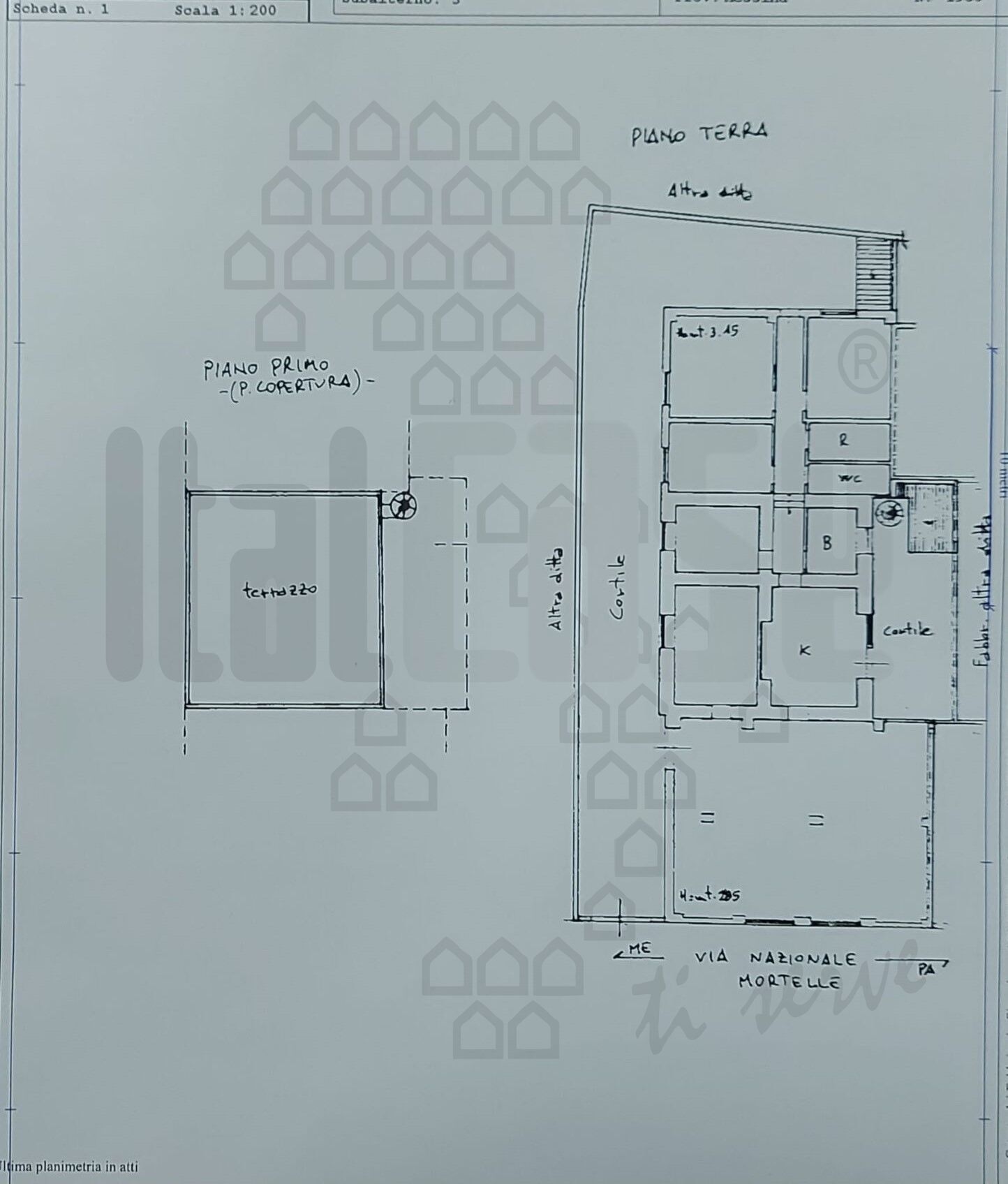
Messina a pochi passi dalla spiaggia di Mortelle in una delle località più rinomate con una posizione incantevole e privilegiata, proponiamo splendida soluzione semindipendente ideale per chi ama il mare e la tranquillità. La soluzione immobiliare, situata al piano terra, offre uno spazio abitativo di circa 246 mq, perfetto per accogliere famiglia e amici. La posizione strategica rende questa soluzione semindipendente un valido investimento, offrendo tutto ciò che si può desiderare: relax quotidiano, spazi per feste e intrattenimento, comodità di avere servizi pubblici, supermercati in zona, ristoranti, pizzerie, ecc.
Le caratteristiche principali di questo soluzione semindipendente sono una posizione privilegiata a pochi passi dalla spiaggia, un piano terra di circa 246 mq di spazio abitativo, più di 100 mq di spazi esterni, un terrazzo di circa 80 mq con vista panoramica sul mare.
Le caratteristiche specifiche sono: triplo salone, cinque vani, due bagni, cucina abitabile, ripostiglio, terrazzo e spazio esterno su due lati, posto auto, buono stato dell'immobile, riscaldamento autonomo, aria condizionata, classe energetica F.
Per ulteriori informazioni o per prenotare una visita, non esitate a contattarci, chiamare il numero +390903147041 e rivolgersi al consulente diretto Meduri Dominic. Questa è un'opportunità davvero unica, da non perdere. Realizza oggi il tuo sogno di vivere un domani in una splendida casa al mare con un panorama incantevole a Messina!
Codice MLS
VT17473
Data annuncio
12 dic 2024
Tipologia
Appartamento
Contratto
vendita
Superfice
246 m2
Ambienti
8
Servizi
2
Terrazzo
Cucina
Abitabile
Riscaldamento
Autonomo
Autoclave
Balconi
No
Piano
PT
Ascensore
No
Posto auto
Garage
Giardino
Condizionamento
Libero
Stato
Buono/Abitabile
Arredamento
Non Arredato
Spese condominiali
0,00 € mensili
Classe immobile
Signorile
Anno
1980

Classe energetica F

Indice prestazione energetica >= 0.00

Mappa non disponibile

Contact the agent

Contatta l'agente.

Agente

Dominic Meduri.

Dominic Meduri

Italcase Messina 3

3403576458
meduri3@italcase.it