logo

stiamo cercando il tuo immobile ideale su oltre 41000 offerte

caricamento
+39 02 89954059
Appartamento in vendita - Rif. Q68

Provincia di UD .

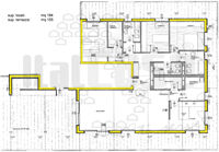
ATTICO nuova costruzione consegna settembre 2008 mq.265 con eventuale miniappartamento contiguo di mq 65 terrazzatissimo su 4 lati eccellente livello di finitura, possiblie personalizzazione delle distribuzioni interne, Una rara opportunità ad un congruo
Codice MLS
Q68
Data annuncio
7 mar 2008
Tipologia
Appartamento
Contratto
vendita
Superfice
0 m2
Terrazzo
No
Cucina
No
Riscaldamento
No
Autoclave
No
Balconi
No
Ascensore
No
Posto auto
No
Garage
No
Giardino
No
Condizionamento
No
Libero
No

Mappa non disponibile

Contact the agent

Contatta l'agente.

Agente

Renato Fumato.

Renato Fumato

Partner Sicasa Srl

329 623960
sicasa@sicasa-ud.it